Descrizione
Sviluppata su due livelli, proponiamo luminosa casa singola in classe A4 caratterizzata da finiture moderne e all’avanguardia e impreziosita dal giardino con un’esclusiva vista sui Colli Euganei.
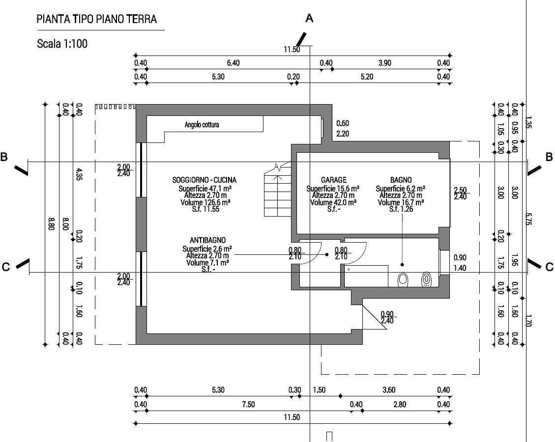
Al piano terra troviamo ingresso sull’accogliente zona living con soggiorno e angolo cottura con la possibilità di separare la cucina, un anti-bagno da utilizzare come lavanderia, un bagno finestrato e il garage.
Il primo piano presenta la zona notte con la camera padronale valorizzata dalla terrazza e dal bagno padronale, due camere da letto di cui una doppia entrambe collegate ad un terrazzo comunicante, terzo bagno finestrato.
Possibilità di personalizzare gli ambienti interni in base alle proprie esigenze e di scegliere le rifiniture interne secondo i propri gusti personali.
DOTAZIONI: impianto fotovoltaico, riscaldamento a pavimento, pompa di calore e predisposizione dell’impianto di raffrescamento a pavimento con deumidificatore










