Descrizione
Zovon (Vò):
Con vista panoramica sui colli Euganei e Berici, proponiamo in fase di costruzione, nuova porzione di bifamiliare sviluppata su due piani con un meraviglioso giardino che circonda la casa di ben 1000 mq.
Questa bifamiliare è la soluzione giusta per poterti personalizzare la casa come piace a te perchè verrà consegnata al grezzo.
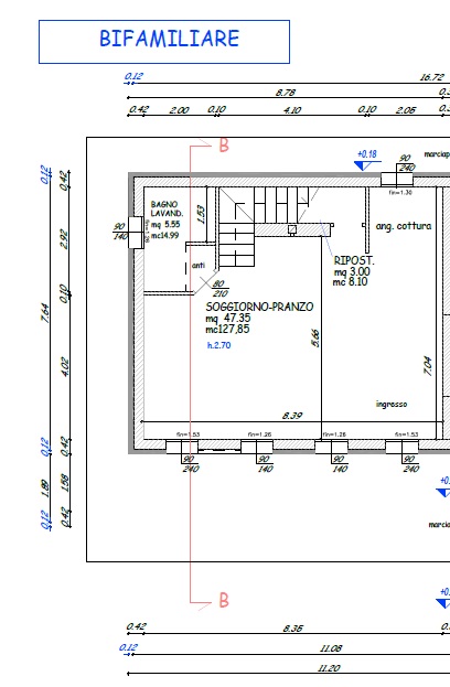
La bifamiliare si compone di un ingresso che si affaccia su un ampia zona giorno di 50 mq circa molto luminosa. Sempre al piano terra si trova un bagno finestrato ed un ripostiglio.
Salendo al primo piano, la bifamiliare è composta da tre camere ( due matrimoniali ed una singola) ed un bagno finestrato.
Nel retro della casa si trova un ripostiglio ed un pergolato di pertinenza ad uso posto auto.
Il tetto della bifamiliare sarà travato in legno, mentre la struttura sarà costruita con il cappotto esterno.
Ottima soluzione per chi cerca tranquillità, verde e il vivere in una casa che verrà costruita con tutti gli standard per il risparmio energetico.










